Funkcjonalne (niezbędne)
Analityczne
Marketingowe

Wyjątkowe mieszkanie w centrum Sanoka Sanok, Franciszkańska

1 pokoj
45.00 m²
5 929,33 zł/m2
3 piętro
DELI-MS-427
Oblicz ratę kredytu

266 820 zł

Wyjątkowe mieszkanie w centrum Sanoka
Oferta na wyłączność

Szczegóły oferty

Symbol oferty DELI-MS-427
Powierzchnia 45,00 m²
Liczba pokoi 1
Rodzaj budynku kamienica
Technologia budowlana cegła
Piętro 3
Liczba pięter w budynku 3
Stan lokalu do wykończenia
Okna PCV
Rok budowy 1897
Umeblowanie brak
Usytuowanie dwustronne
Pomieszczenia

Opis nieruchomości

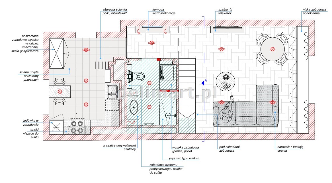
Biuro DELIMART nieruchomości ma przyjemność zaprezentować Państwu ofertę wyjątkową ofertę sprzedaży mieszkania typu studio z antresolą, usytuowanego na III piętrze zabytkowej kamienicy w sercu Sanoka – przy ul. Franciszkańskiej 5. Obecnie, po kompleksowej przebudowie, budynek pełni funkcję mieszkalno-biurową, zachowując przy tym swój niepowtarzalny charakter i architektoniczny urok. 

Studio z antresolą w zabytkowej kamienicy – ul. Franciszkańska 5, Sanok

MIESZKANIE:

 powierzchnia 45 m2 
osobna kuchnia
 mieszkanie typu studio z antresolą
 1 pokój dzienny z wysokim sufitem
 antresola
ciche i ciepłe z doskonałą lokalizacją

LOKALIZACJA:

Położenie tuż przy głównym rynku Sanoka, w otoczeniu zabytkowej zabudowy, gwarantuje dostęp do pełnej infrastruktury miejskiej, kultury, gastronomii i usług.

DODATKOWE INFORMACJIE :

  atrakcyjne koszty utrzymania
  do dokończenia remontu, z możliwością aranżacji według własnych potrzeb
  w cenie oferujemy profesjonalny opis oraz rzut z propozycją wykończenia przygotowany przez architekta widoczny na zdjęciach
  piwnica 
  wspólnota mieszkaniowa 
  izolacja pod dachem pianką PUR
  nowa elektryka wraz z zabezpieczeniem na każdej linii
  rozbudowana instalacja elektryczna, uwzględniająca zwiększoną liczbę gniazd wtykowych oraz dodatkowe obwody oświetleniowe w suficie
  nowa hydraulika 
  ogrzewanie podłogowe w łazience

  funkcjonalny układ pomieszczeń
  piękny widok z okna salonu widoczny na zdjęciu
  zabytkowe otoczenie budynku oraz zadbana klatka schodowa

ATUTY:

   unikalna lokalizacja w zabytkowym obiekcie z historią
   położenie w ścisłym centrum miasta – idealne dla miłośników miejskiego życia
   idealne jako pierwsze mieszkanie, inwestycja pod wynajem lub pracownia artystyczna
   wysokie sufity i antresola dają poczucie przestrzeni i loftowego klimatu
   widok na zabytkową zabudowę i dachy starego miasta – codzienna inspiracja
   mieszkanie bez konieczności remontu kapitalnego na lata

Oferta skierowana jest do osób ceniących klimat historycznych wnętrz, poszukujących nietuzinkowej przestrzeni w centrum miasta. Doskonała propozycja dla singla, pary, inwestora lub osoby kreatywnej, która pragnie stworzyć miejsce z duszą – w otoczeniu kultury, historii i miejskiego życia.

CENA:
266 820 zł 



Serdecznie zapraszamy do obejrzenia nieruchomości

Ofertę prowadzi:
Agent nieruchomości
Piotr Miłoszewski
tel. +48 603 406 307
piotr@delimart.pl 

Lokalizacja nieruchomości

Kalkulatory

Kalkulator kredytowy

Wysokość raty

PLN
%

Podobne oferty

Oferta na wyłączność

Mieszkanie z ogrodem, 3 pokoje, do remontu

Sanok, Błonie

3 pokoje 66 m2 3 484,85 zł/m2
Oferta na wyłączność
Oferta na wyłączność

Parter, 2 pokoje, niski czynsz do spółdzielni

Sanok, Wójtostwo

2 pokoje 32 m2 7 343,75 zł/m2
Oferta na wyłączność
Oferta na wyłączność

Mieszkanie z własnym dużym ogrodem - 5a

Sanok

2 pokoje 49 m2 5 897,96 zł/m2
Oferta na wyłączność
Oferta na wyłączność

Mieszkanie na sprzedaż ul. Jana Pawła II

Sanok

3 pokoje 48 m2 7 062,50 zł/m2
Oferta na wyłączność

Agent nieruchomości

Proszę wprowadzić poprawne imię i nazwisko
Proszę wprowadzić poprawny numer telefonu
Proszę wprowadzić poprawny adres e-mail
Proszę zaznaczyć wymagane zgody
Rozwiąż równanie:
12 4
Niepoprawny wynik